У Мінску паказалі кватэру ў стылі «яскравы мінімалізм»
16- 25.11.2025, 17:31
- 8,862
Як яна выглядае?
Аматарам манахрому тут дакладна няма чаго рабіць. Кватэра плошчай 93 кв. м, размешчаная ў жылым комплексе «Гранд Хаус» у Мінску, мае яскравы і эмацыйны інтэр'ер. Багацце колераў спалучаецца з мінімалізмам — мэблі і дэталяў выкарыстана няшмат. Аўтар праекта — дызайнер Міхаіл Курносаў. Партал interior.ru заўважыў яго працу і расказаў пра яе асаблівасці.
Адзначаецца, што заказчыкі — маладая пара, якая працуе ў IT-сферы і захапляецца веласпортам. Яны былі знаёмыя з фірмовым стылем, у якім працуе дызайнер, і цалкам яму даверыліся. Міхаіл Курносаў стварае кватэры выключна ў эстэтыцы яскравага мінімалізму. Праект, прапанаваны пары, быў узгоднены без аніводнай праўкі.

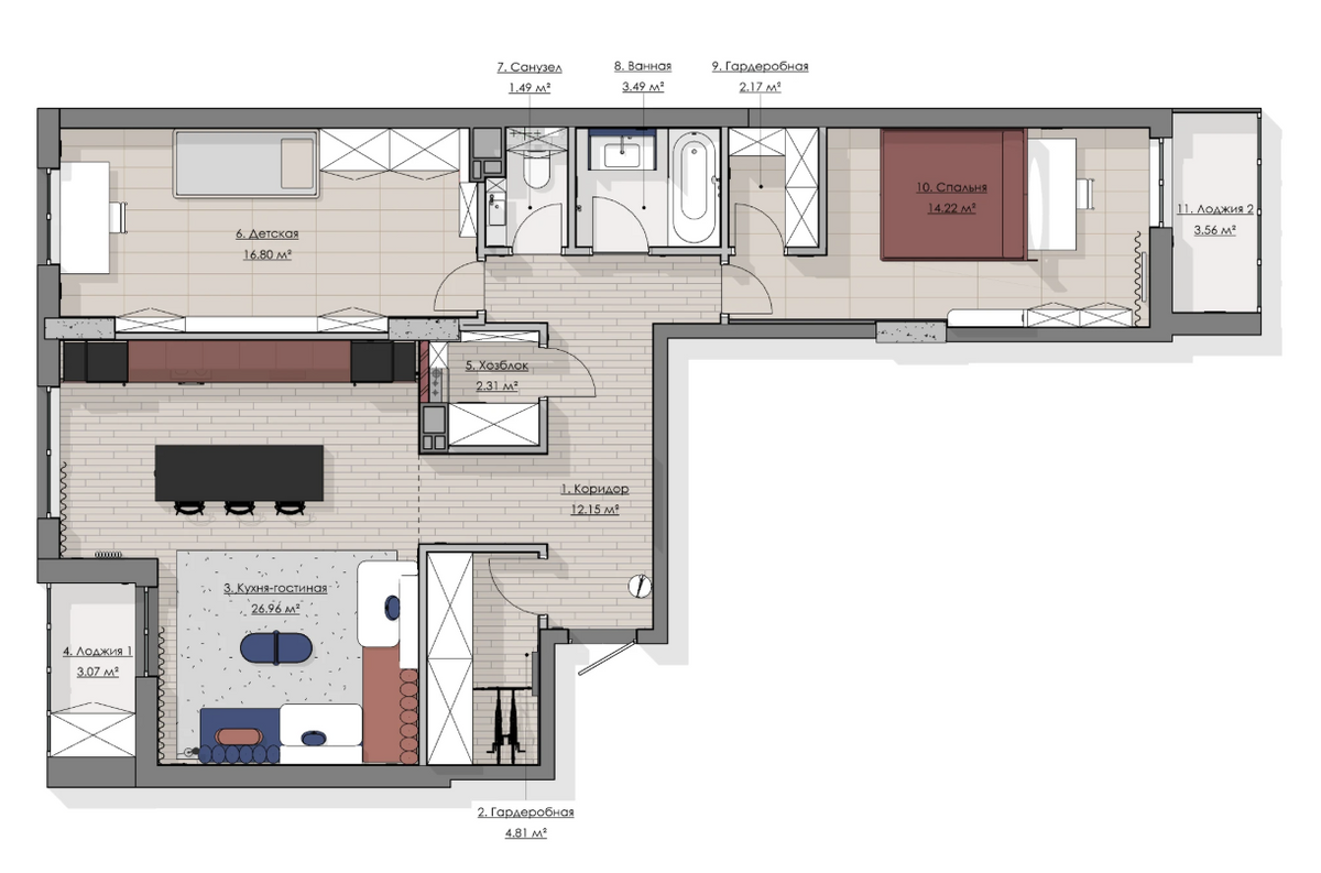
Дызайнер распавёў, што першапачатковая планіроўка кватэры была не самай зручнай. Ён зрабіў перапланіроўку з поўнай рэарганізацыяй функцыянальных зон.
— Канцэпцыя пабудавана на дакладным зоніраванні: я вылучыў тры асноўныя зоны — кампактны пярэдні пакой, агульную зону кухні-гасцінай і прыватную частку са спальняй і працоўным кабінетам. Тут жа, пры ўваходзе ў спальню, размешчаная закрытая гардэробная.

Мы арганізавалі раздзельны санвузел, вылучылі асобны гаспадарчы блок для пральнай і сушыльнай машын, а таксама абсталявалі прасторную гардэробную ў пярэднім пакоі. Адзін з пакояў пакінулі неабсталяваным — у ім зрабілі толькі фінішную аздабку, каб у далейшым размясціць тут дзіцячую.

Адзінай цёмнай прасторай стаў пярэдні пакой. Яго выфарбавалі ў чорныя і белыя колеры.
Натхненнем для дызайну кухні стаў джаз. Графічныя чорныя фрэзераванні на ласосевым фоне — гэта метафара нацягнутых струн, а дыяганальныя нахілы сімвалізуюць пераход у іншую танальнасць.

Матывы струн відаць і ў зоне адпачынку з канапамі — графічныя палосы на сцяне.
Галоўны аб'ект у спальні — ложак з вялікай круглой адтулінай у ізгалов'і. У гэтай дэталі адразу некалькі функцый: зоніраванне прасторы, прапуск святла і схаванне ад вачэй працоўнай зоны.

У ваннай можна заўважыць так званую «капсулу чысціні». У ёй убудаваныя сістэма захоўвання, падсвятленне, падагрэў люстэрка і гадзіннік.

